我国建筑幕墙面板和构件的新材料、新应用
2022-01-13 来自: 成都汇才源新型建材有限公司 浏览次数:431
1 新型建材
近年来,随着我国绿色建筑的发展及绿色新型建材认证工作的推广,我国新型建材正朝着节约资源、节省能源、健康、安全、环保的方向迅猛发展。作为建筑幕墙主要材料的幕墙面板材料,也在向着轻质、高强、节能、耐火、环保和集成化的方向发展,新型建材已成为建筑幕墙现代化不可缺少的环节。当前,我国建筑幕墙面板和构件材料的选用,已从原先简单的玻璃、石材、金属板材发展到各种各样的人造板材、高性能复合材料和集成构建等,对材料的各种性能要求都有了提高。下面将介绍几种新型的幕墙材料。
1.1 金属复合板
1.1.1不燃级铝复合板

图1
1.1.2钛、铜、不锈钢复合板
钛、铜、不锈钢有着的金属质感和不同的耐候特性,一直受到建筑师的喜爱,特别是在欧洲建筑上使用和流传较早。近年来在我国也开始大量的采用钛锌板、铜板和不锈钢板作为建筑外维护结构的材料,以突出建筑的特性及满足耐候的要求。钛、铜、不锈钢虽不属于贵金属,但相比铝合金材料在建筑上的应用,就显现了昂贵的一面。所以在建筑外墙面上采用钛、铜、不锈钢板时,很少采用实心单板,通常采用小于1mm的薄板。由于面板较薄, 使得建筑表面平整度无法得到有效的控制和保证,同时受限于较小的承载能力,面板尺寸一般较小,影响了建筑立面的装饰效果。由此而产生的钛锌复合板、铜复合板和不锈钢复合板等,可为建筑的外墙提供更多的新型材料和选择途径。钛、铜、不锈钢复合板可制成PU芯材复合板、耐火性芯材复合板和铝蜂窝芯复合板,其生产和产品的性能及加工安装工艺都非常成熟。图2为应用于宁波海洋博物馆的钛复合板幕墙。

图2
1.1.3双金属复合板
双金属复合板是由两种或同种材料不同金属状态的板材经各种不同连接方法复合而形成的一种新型板材。双金属复合板具有单层金属材料所不具有的物理、化学性能以及力学特性,能兼顾和满足金属表面装饰、强度、刚度、耐久等性能的要求,可节省稀贵材料,降低成本,目前已广泛应用于化工、电力、机械、船舶、航空等领域并将进入建筑幕墙行业。目前适用与建筑幕墙的双金属复合板有不锈钢复合板、铜铝复合板、钛钢复合板等。
1.2非金属板
1.2.1 免烧瓷质饰面再生骨料板
再生骨料板是一种全无机、节能环保、内部致密性高、力学性能和理化性能好的新型建筑用产品。它具有节能环保、再生循环利用率高等优越性。其生产工艺与传统人造板材相比有着其的优势,无需经过高温烧制,也无需经过高压压制,在常温常压下以建筑物固体废弃物(含量30%-70%,可选取建筑废弃中的混凝土块、硬质石块、废砖废瓷块、玻璃碎块,还可选用工业矿渣、粉煤灰等)为主要原料通过化学反应即可成型,节省了大量的能源。同时生产过程中也不会排放粉尘、二氧化碳等污染物,基本上实现零排放生产。
瓷质饰面再生骨料板在技术特征上具有以下特点:
1. 由于采用无机材料,其耐候性、耐酸碱性表现优异;
2. 放射性达到建材A类标准;
3. 莫氏硬度4-7级,抗压抗折性能优异;
4. 采用专利制花技术,使得每一块板材质感不一,自然大气。
其主要理化力学性能见表1。

目前瓷质饰面再生骨料板的研发和生产工艺已经成熟,产品已在建筑中推广和应用。产品主要用于工业与民用建筑工程内外墙面干挂饰面和景观地面铺装,并将作为外墙板在装配式建筑中起到的作用。图3为安装在深圳前海万科项目的瓷质饰面再生骨料板。

图3
1.2.2 轻质高强陶瓷板
轻质高强陶瓷板是一种具有轻质、高强、保温、高仿真等优异功能的新型建筑装饰材料。产品通过在原料配方里面添加碳化硅(SiC)材料和陶瓷废固物,使新型陶瓷板在烧制过程中不像普通陶瓷一样产生收缩,反而是膨胀的,从而使新型陶瓷板在同等板厚的条件下,具有更小的质强比,在尺寸和厚度上比传统陶瓷板更加容易做到大板面和大厚度。板面尺寸可大于1200mm×600mm,板材标准厚度可达18mm~22mm(个别订制产品厚度可到25mm)。
新型陶瓷板的容重在1.65~1.95g/cm3之间,虽然材料容重降低了,但仍然保持了较高的抗弯强度值,其小值R≥28.0(N/mm2),远高于花岗岩的强度值。通过降低板材容重、增加板材厚度、保持较高的抗弯强度,使得新型陶瓷板降低了玻化程度和脆性,在韧性和抗震等安全性能有大的提高,为扩大产品的适用范围提供了可靠的性能和质量保证。同时新型陶瓷板还能减轻建筑负载,方便了施工,节约安装成本等优点。
由于产品配方中引入的大量陶瓷废固物(废固物占比15%-50%),从而使新型陶瓷板具有绿色环保的特点。通过采用3D打印技术,可使板面仿真各种不同的石材、陶板等。图4为仿砂岩系列产品样板。.

图4
1.2.3 人造石面板
该产品是近几年出现的一种可应用于建筑幕墙的新型板材,其前生是用于台面的实体面材,后经技术发展和抗老化和阻燃配方处理后,可用于建筑幕墙,在欧洲使用,国内也开始试用。
产品以氢氧化铝为主要填充体,以经过耐老化和阻燃处理后的树脂为结合体,生产的板材有的玉石的质感,色彩丰富,可以进行造型,因此颇具现代风采,在低层的商业建筑等颇受欢迎。图5为深圳宝安中洲大厦商业裙楼采用的人造石装饰线条,外表造型可做到任意扭曲和连续无接口。

图5
1.2.4 超高性能混凝土板(UHPC)
超高性能混凝土板(UHPC)是一种新型高强度,高韧性,低孔隙率的水泥基材料。它通过在材料中混入有机纤维或金属纤维、提高组分的细度与活性和使用细骨料等方法,使材料内部的孔隙与微裂缝减到少,以获得超高强度与高耐久性。
超高性能混凝土板具有极高的强度、超高的耐久性、耐化学腐蚀性、抗冲击、耐疲劳、防火和不必二次装饰的整洁美观的外表效果。同时还具有的自愈能力,通过独立实验室的试验验证,当板材出现微裂缝时,可利用空气中的湿度进行水化反应从而对微裂缝进行自我弥合。超高性能混凝土板主要物理力学性能指标见表2。

超高性能混凝土板具有良好的力学性能、耐久性能和装饰效果,目前开始在我国的建筑幕墙工程项目上应用。图6为深圳深业上城UHPC幕墙工程,幕墙由2833(高)×1640(宽)UHPC格栅标准单元和3333(高)×750(宽)×20mm(厚)大UHP板等单元构成。
UHPC格栅标准单元由L型边框、8根扭曲变截面的竖向格栅、2根40×50的横杆构成,见图7。


1.3饰面涂料
1.3.1 免烧釉面涂料
几千年来,釉作为陶瓷制品的饰面,一直沿用着高温焙烧的生产工艺。在建筑装饰中大量采用釉面陶瓷制品的当今,高温焙烧时所产生的大量能耗,与当现代倡导节能环保的基本 国策显现出巨大的不和谐和冲突。为此,产生了具有传统釉面装饰效果,同时又能大量减少能耗,可涂覆在不同的建筑材料表面并形成各式各样釉面装饰效果的免烧釉面制品的涂料,并将广泛的应用于建筑室内外装饰。图8
在常温非烧结条件下,将免烧釉面涂料施加在纤维水泥板、玻璃、石板或铝板等板材表面,经化学反应固化可在板材表面形成具有釉面装饰效果及满足使用性能的釉面饰面层。采用免烧釉面的装饰板可适用于建筑墙面和地面的室内外装饰装修,产品的建筑工业行业标准《建筑用免烧釉面装饰板》已通过了专家审查并将发布实施。表3为免烧釉面铝板釉面的理化力学性能指标。图8为免烧釉面装饰板视觉效果。


1.3.2 水性纳米烤瓷涂料
水性纳米烤(陶)瓷涂料是具有绿色环保、健康的新一代涂料,它不产生任何有毒气味、气体和对环境及人体有害的物质。它由纳米氧化物、着色颜料、无机硅固化剂及助剂等组成,是无机硅单体和无机纳米氧化物在原子或分子状态通过缩合反应成为水性无机的纳米结合物。将水性纳米烤(陶)瓷涂料涂覆于铝合金板面,经低温烘烤(180℃)可形成具有超耐候、抗划伤、防火不燃、自清洁等特点的低温釉,其寿命可达30年以上。目前水性纳米烤(陶)瓷涂料已用于铝板幕墙和室内装饰用铝单板、铝蜂窝板等金属装饰材料的涂装。表4和表5为报批中的建材行业标准《建筑装饰用烤瓷铝板》对采用水性纳米烤(陶)瓷涂料的烤瓷铝板提出的性能要求。图9为采用水性纳米烤瓷铝板的天津地铁轨道6号线。



图9
1.4 无机防火保温一体化板
无机防火保温一体化板是一种由无机矿物经特殊工艺加工而成的新型防火保温板,它集防火、保温、吸声、隔声、节能、环保等综合性能于一体,广泛的应用于建筑用防火门、各种建筑防火封堵构造和建筑室内节能保温装修等。新型防火保温板主要性能见表5。

当采用该板材构建建筑幕墙层间防火封堵构造时,其构造形式简单可靠、安装工艺简便易行、施工质量易于控制,且具有极高的防火性能。通过实体火灾实验对该形式的建筑幕墙层间防火系统的防火性能进行了测试,在火源功率为1.5MW和3MW的单元式玻璃幕墙实体火灾实验和火源功率为1.5MW和2MW的构件式玻璃幕墙实体火灾实验中,建筑幕墙层间防火系统能够有效地阻止火焰从燃烧室沿幕墙与外墙之间的空腔以及破损幕墙的外侧向观测楼层蔓延,能够对幕墙框架的关键部位起到保护作用,并且能够有效阻止火灾高温从燃烧室沿幕墙与外墙之间的空腔和破损幕墙的外侧向上层建筑蔓延,避免火场高温破坏上层建筑物结构和引燃上层建筑物内的可燃物。

图10
梁底和楼面状况,层间封板为无机防火保温一体化板。图11为燃烧过程中和燃烧后的结果,见下层幕墙的主梁已完全烧毁,而梁底的封堵板依旧保持原有状态。图12为单元式幕墙在火源功率为3MW试验的温度曲线,当燃烧室温度约为1200oC时,观测层(燃烧室上层)仍然处于较低的温度。


1.5 陶瓷太阳能集热板
陶瓷太阳能集热板是一种集幕墙板功能与太阳能收集功能为一体的新型陶瓷板。陶瓷板将吸收的太阳转变为热能,加热板中流过的水。被初步加热的水进入下一块陶瓷板继续加热,如此通过多块陶瓷板加热到足够温度的水被储存在蓄热水箱中储存起来,作为供暖或供热水使用。
它整体为陶瓷材质,表面采用能吸收太阳能的面层,太阳能吸收比可高达93%,日得热量可达8.6MJ/m2,内部为通水管网,可承受0.1MPa的管内使用压力,管壁为不渗水的釉面层,每块陶瓷板各设一个进出水接口。
该产品的特点就是将白天被浪费的太阳能以热水的形式储存起来,可以节约建筑能源消耗,同时陶瓷产品的超长寿命又为这种节能工程提供了长期寿命。陶瓷太阳能集热板典型工程应用见图13。

该产品在必要时还需在水箱中配套适当的辅助加热装置,使用中需要注意的是不能在充水的情况下受冻,否则会造成陶瓷板的。
1.6 智能调光玻璃
智能调光玻璃,它是普通玻璃与液晶调光膜组合在一起形成的一种新型的特种光电玻璃产品。其采用的智能液晶调光膜由两层柔性透明导电薄膜与一层聚合物分散液晶材料(PDLC)构成。通过外加电场,便可实现调光膜在无色透明与乳白色不透明两种状态之间的快速变换。透明状态下的调光玻璃的透光率高达80%,与普通的玻璃幕墙相差无几;乳白色不透明状态下,其雾度高达90%。
智能调光玻璃可用于室内装饰装修,也可应用于建筑外墙。调光膜可直接贴在玻璃上使用,该种方式操作简单,应用广泛,凡是有玻璃的地方均可采用;也可将调光膜复合在两层玻璃中间,经高温高压胶合形成夹层调光玻璃作为建筑玻璃使用,这种玻璃已有现行标准进行规范《电致液晶夹层调光玻璃》JC/T 2129-2012;采用调光膜同样可以生产出具有调光作用的中空玻璃。比较原有建筑外墙广告采用的LED显示屏,智能调光玻璃具有优越的性能,是未来建筑室内外装饰的产品。
2 设计及应用
2.1人造板及应用
2.1.1石材蜂窝板
1)产品结构及特点
石材蜂窝板是由石材薄板与蜂窝板经胶粘剂粘接复合而成的高科技产品。其饰面石材薄板几乎可以是任何品种的石材,如花岗岩、大理石、砂岩和石灰石等。蜂窝板主要包括了采用铝蜂窝作为芯材的铝蜂窝板、钢蜂窝板、玻纤蜂窝板等。石材蜂窝板的结构见图14和图15:

目前,石材蜂窝板基本可分为石材铝蜂窝板、石材钢蜂窝板、石材玻钎蜂窝板等。石材蜂窝板的饰面石材厚度,亚光面和镜面板一般为3~5mm,粗面板一般为5~8mm。蜂窝板的厚度可根据不同的用途和设计要求确定。用作外墙板时,厚度通常在15mm以上。由于饰面石材厚度的减薄,加上蜂窝板结构自身具有重量轻、强度高、刚度好等优点,使得石材蜂窝板既具有石材的表面效果,又具有一般石材不可能具有的性能。它和传统的石材相比,具有下列优点:
1.重量轻:石材蜂窝板的平均重量约为16kg/m2,几乎比相当厚度的实心石材轻80%。此重量的减轻可以减少建筑物的重量荷载,降低劳动强度,节省建设成本。
2. 强度高:平面抗拉、层间抗剪、弯曲刚度等力学性能指标值高,抗变形、抗冲击,20mm的石材蜂窝板的抗冲击强度约为30mm厚石材的10倍以上。
3.安全性好:受冲击或超荷载的弯曲变形后,石材表面只是局部破裂,不会产生辐射性裂纹,更不会整体破裂、脱落。
4.加工简便:可使用普通加工工具在现场对需要修整的成型产品进行切割、安装。能制成各种不同类型的造型,线条流畅、美观大方。
5.经济美观:可以根据建筑需要,选择国内、外任意的石材面料,特别是强度低、品种的石材进行复合,既能保持石材的主要性能指标,提高耐用年限,又可大大提高石材的利用率,节约资源。
6.节能环保:普通实心石材导热系数为(3.5~1.3)w/m·k,而石材铝蜂窝板导热系数为(0.104~0.130)w/m·k,由此可见,石材铝蜂窝板是一种隔热节能的材料,同时还具有隔音降噪的性能。

图15 石材玻纤蜂窝板
2)工程应用
石材蜂窝板在我国以及世界各地的建筑外墙上得到应用,作为一种新型的建筑材料,在应用中需对以下问题加以关注。如防止胶粘剂老化对产品耐久性的影响、不同材料间热膨胀系数对板材变形的影响、可靠的安装连接方法、不对称复合板饰面石材的弯曲强度计算以及石材蜂窝板的主要性能要求和质量控制等。
2.1)产品耐久性
石材蜂窝板通常采用改性环氧树脂作为胶粘剂,其耐久性是可靠的。我国首座采用石材蜂窝板作为幕墙外装饰材料的的超高层建筑陕西电信网管大厦(图16),完工于2001年,经过十七年的使用,从现场拆卸的板块依旧保持完整和良好的性能,见图17和表6。

胶粘剂作为高分子材料,在自然环境中使用,其老化是不可避免的事实,在使用过程中如何避免或减缓产品性能的衰减,是工程设计中需要考虑的问题。影响胶粘剂性能老化有两方面的主要因素,影响紫外线的照射,其次是高温湿热的环境。根据石材蜂窝板的使用状况,紫外线照射对石材蜂窝板的使用耐久性并不会产生影响,因为胶粘剂并不暴露在日光下,产生影响的主要因素是长期高温湿热的环境。所以在产品的使用中,防止外部雨水直接浸泡胶粘剂成为主要的因素。因此,石材蜂窝板幕墙宜采用封闭式系统进行设计。当采用开放式系统时,石材蜂窝板周边应采用封边处理。同时,要根据板面尺寸、不同饰面石材的性能、风荷载及其它作用的大小,控制好板面的变形,确保板面不因弯曲变形过大而导致饰面石材产生细小裂纹,使得雨水渗透到粘接层,从而影响石材蜂窝板的耐久性能。

图16

图17
2.2)承载能力的判定和计算
1.为防止石材蜂窝板饰面石材在风荷载和其它作用的作用下产生细小裂纹或断裂而影响石材蜂窝板的耐久性能,在判定和计算石材蜂窝板面板承载力时,应将饰面石材开始产生细小裂缝时的承载值作为石材蜂窝板弯曲破坏的极限承载值,而不是将整板所能承受的作为石材蜂窝板弯曲破坏的极限承载值。尽管饰面石材断裂后石材蜂窝板整体并未产生任何安全问题,且蜂窝板仍然可继续承受更大的荷载直到蜂窝芯产生失稳或整板断裂等。
2. 对试验验证采用简支梁支承的石材蜂窝板,饰面石材的弯曲应力可采用以下公式计算:








2.3)安装连接
石材蜂窝板通常采用背面四点支承的安装连接方法。安装连接件为特制的异形螺母(见图19),并通过胶粘剂固化于石材蜂窝板中。通过建材检测中心对单个异形螺母的抗拉极限承载能力的检测,当铝蜂窝芯厚度为14mm,两边铝合金板厚度为0.5mm时,其抗拉拔力为4.263kN,小抗拉拔力为3.400kN,平均抗拉拔力为3.706kN;当铝蜂窝芯厚度为19mm,两 图19 边铝合金板厚度为0.5mm时,其平均抗拉拔力为6.250kN。由于安装连接件的承载能力是石材蜂窝板安全应用的关键之一,所以安装连接件的加工和固定均应在工厂中按照的工艺要求和质量控制程序来完成,不得在现场临时埋设,出厂前还应经过产品出厂检验方可使用。在工程设计时,尚应对采用产品进行抗拉承载能力的检测,并以此作为工程设计验算的依据。
2.4)板面变形控制
随着建筑装饰发展的需要,石材蜂窝板的应用越来越趋向于大板块发展, 板块面积为2.5m2以上的大板在工程中已常有应用。但石材蜂窝板是由多种材料经胶粘剂粘接而成,它们之间的材料线膨胀系数(α)(见表9)互有差异,在环境温度变化较大的情况下,特别是在极端寒冷气候环境条件下,板块可能由于各种材料的不同变形量而导致石材面板产生整板凹凸的变形现象,影响到建筑的美观。同时也会在石材面板与蜂窝板的粘接层间形成附加的剪切应力,影响石材蜂窝板的正常使用。为防止上述现象的产生,在工程设计和使用中应控制板块单边长度和面积。通常板块单边长度不宜大于2.0m,面积不宜大于2.0m2。

玻璃纤维板与石材板块的热膨胀系数非常接近,同时具有很好的力学性能,其模压板的弯曲强度可达740MPa以上。因此,采用玻璃纤维蜂窝板与石材复合而成的石材蜂窝板可有效的防止板块的变形问题,并已在国外建筑上已得到推广应用,如图20美国纽约曼哈顿金融中心区的巴克利大厦。同时它将有可能成为今后石材铝蜂窝板的一个发展方向。但由于玻纤蜂窝板相对铝蜂窝板和钢蜂窝板的脆性较大,弯曲刚度较小,受载时产生的变形较大,所以在确定其面板尺寸的大小时应更加慎重。

图20
2.5)应用和设计
石材蜂窝板在幕墙工程的应用和设计中,应根据石材蜂窝板的特点,合理、正确的确定石材蜂窝板的使用范围和饰面石材厚度与铝蜂窝板厚度的搭配关系。
1.由于石材蜂窝板石材使用量少,同时通过复合铝蜂窝板,可以大大提高石材的抗弯能力,对于造价昂贵的石材,或弯曲强度低的石材,如砂岩、石灰石等,可考虑采用石材蜂窝板来降低工程造价和扩大低性能石材的使用范围。
2. 比较石材板材,石材蜂窝板更具有安全性和重量轻的优势,在建筑的吊顶和倾斜部位,或大面积采用石材幕墙的建筑,可考虑采用石材蜂窝板来提高建筑的使用安全和降低建筑的整体重量。
3. 在设计饰面石材厚度与铝蜂窝板厚度和选用石材蜂窝板板厚时,应着重考虑石材的各项性能指标,包括弯曲强度、密度、吸水率和抗冻等。通常光面(如镜面)饰面石材的厚度不宜大于5mm,粗面(如火烧面)饰面石材的厚度不宜大于8mm。对于材质较好的石材,吊顶用时可将石材厚度降低到3mm。铝蜂窝板在整体复合板中起到承载和连接支承的作用,所以在石材铝蜂窝板厚度的设计计算时,要严格考虑铝蜂窝板两侧边铝板厚度和铝蜂窝芯芯格及壁厚尺寸对石材蜂窝板整体力学性能的影响。从角度出发,设计计算石材蜂窝板幕墙的面板时,可忽略饰面石材的抗力作用。
4. 石材蜂窝板饰面石材表面应进行防护处理,以提高石材的耐酸、耐碱能力,同时降低石材吸水率。
2.1.2高压热固化木纤维板
1)产品性能及特点
建筑幕墙用高压热固化木纤维板(HPL),是由30-40% 树脂(或阻燃型树脂)与60-70%木质纤维(或牛皮纸)经充分浸渍混合组成,板材单面或双面复合有特定颜色或设计纹路的装饰性面层,面层上面有一层透明涂层,透明涂层经电子束固化技术处理以加强产品长期耐候性能或耐光腐蚀性能,上述成分在高温 (≥ 150° C / ≥ 302° F) 和高压 (> 7 MPa) 环境下经压制后生成了一种高密度无孔匀质板材,其表面是已经与基材整体化的装饰面层,板材厚度在6mm或以上,采用阻燃型树脂的板材具有的耐火性能。
建筑幕墙用高压热固化木纤维板具有良好的理化和力学性能,表10为板材的理化力学性能要求,抗湾强度高、冲击抗力高、耐热冲击、耐老化和耐腐蚀是板材的显著特点。

板材备有多种装饰色彩,不同的纹理和不同材质的观感,如木材、陶瓷和金属等,见图21。

图21
面板加工方便,可自由切割到所需的尺寸和造型等等,以适合使用的要求,见图22。

图22
2)工程应用
2.1)面板支承连接形式
高压热固化木纤维板幕墙的面板支承连接形式分为两种,一是穿透支承连接,二是背支承连接。由于高压热固化木纤维板的线膨胀系数较大,数值为2.20×105(1/oC),在应用中通常板面面积较大,支承连接点较多,一般超过四个连接点,所以在面板设计的时候,除了要考虑面板的承载能力,尚要考虑适合面板变形的连接设计。
1. 穿透支承连接
1)连接件
穿透支承连接(图23)的木纤维板和纤维水泥板面板应采用不锈钢螺钉、螺栓、不锈钢开口型平圆头抽芯铆钉或钉芯材为不锈钢的开口型平圆头抽芯铆钉固定。螺栓、螺钉和抽芯铆钉的直径不应小于5mm。

2)连接件的位置布置
a. 支承连接点应分为紧固点和滑动点,紧固点和滑动点的设置应满足板材变形的要求,见图24;
b. 木纤维板幕墙面板的连接点到板边的距离(c)不宜小于20mm,也不宜超过80mm或10倍板厚;
c.连接点间的间距应符合表11的规定:
3)面板安装
高压热固化木纤维板面板安装时,应满足以下要求:
a. 每块面板在面板中心位置有一个固定点,其它所有安装点均应为滑动点;
b. 连接件与面板连接孔间应留有间隙,当连接件直径为5 mm时,面板中的固定点孔径为5.1 mm,滑动点孔径为10 mm;
c. 连接件的头部与面板接触位置的周边搭接尺寸不小于3mm,该部位的剪切应力和挤压应力应小于面板的抗剪和抗压强度设计值。当连接件直径为5 mm时,其头部直径不应小于16 mm;
d. 应采用专用辅助工具使连接件头部与面板的接触位置离开面板表面0.3 mm,各连接件始终处于面板孔洞中心。
2. 背支承连接
1)面板厚度
背面支承连接(见图25)的木纤维板的板厚不应小于8mm。
2)连接件
背面支承连接的木纤维板宜采用螺钉支承连接,也可采用背栓支承连接。连接螺钉的末端型式应符合现行标准《紧固件 外螺纹零件的末端》GB/T 2中末端为“刮削端(SC)”的规定,钢的组别和性能等级应符合现行标准《紧固件机械性能不锈钢螺栓、螺钉和螺柱》GB/T 3098.6中A4-70的规定。背栓应符《人造板材幕墙工程技术规范》JGJ336-2016第3.5.6条的有关规定。
3)连接件的位置布置
a.支承连接点应分为紧固点、滑动点和调节点,紧固点和调节点应置于板的上端,安装滑动点的下方支架,其高度方向的安装位置应按照2.5 mm/m的变形量进行设置,确保板材向下移动时有足够的高度,见图26;
b.支承连接点到板边的距离不宜小于80mm,也不宜超过10倍板厚;
c. 支承连接点之间的间距应符合《人造板材幕墙工程技术规范》JGJ336-2016表6.6.2的规定;


4)面板安装
a 每块板应有两个可调节点。为保持板块的位置,在调节完板的位置后应在固定点位置使用自攻螺丝(或类似的其它方法)将连接挂钩固定在水平龙骨上;
b 每个连接挂钩应使用不少于两个不锈钢背栓或螺丝固定在面板背面;
c面板背面的预制螺钉孔或背栓孔的形状和深度应根据锚固件规格及设计要求确定,钻孔深度宜比板厚小2.5mm,其有效锚固长度为板材总厚度减去 3毫米。
2.2)幕墙基本构造
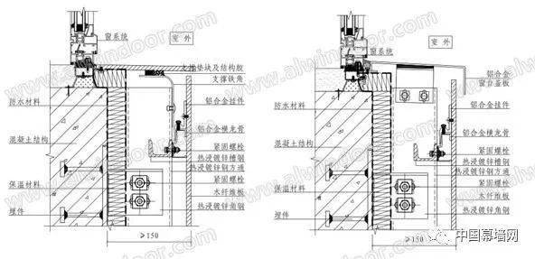
1.穿透支承式高压热固化木纤维板幕墙,见图27。
图27
2.背支承式高压热固化木纤维板幕墙,见图28。

图28
3. 面板板缝形式见图29。

图29
a)开缝式b)搭接式c)镶嵌式
尺寸标注说明:a≥10mm;b≥15mm; c≥30mm;d铝合金≥2.2mm/木纤维板≥3.2mm;
e铝合金≥2mm/木纤维板≥3mm;h小80mm,10倍板厚;
t板厚,8mm/10mm/13mm。
2.3)面板连接就支承设计计算
1. 面板抗弯计算
在风荷载或垂直于板面方向地震作用下,木纤维板的抗弯设计应符合下列规定:
1)木纤维板面板的弯曲应力标准值,宜采用有限元方法分析计算。四点对称布置的矩形面板,也可按下列公式计算;


2)面板中由各种荷载和作用产生的弯曲应力标准值应按《人造板幕墙工程技术规范》JG336-2016中第5.4.1条的规定进行组合。组合后的弯曲应力设计值不应超过面板材料的抗弯强度设计值f。
2. 面板挠度计算
在垂直于面板的风荷载标准值作用下,木纤维板和纤维水泥板面板的挠度应符合下列规定:
1)木纤维板面板产生的挠度,宜采用有限元方法分析计算。四点对称布置穿透支承连接的矩形面板,也可按下列公式计算;


2)在风荷载标准值作用下,四点支承木纤维板的挠度限值df,lim宜按其支承点间长边边长的1/60采用。
3. 连接点抗拉设计
木纤维板连接的抗拉设计应符合下列规定:
1)在垂直于面板平面的风荷载或地震作用下,单个连接点的拉力标准值宜采用有限元方法分析计算。按周边对称布置的矩形面板,也可按下列公式计算:

2.4)适用范围
阻燃型高压热固化木纤维板在外墙应用中的适用高度不大于50m。
2.2 轻质高强陶瓷板及应用
1)产品性能及特点
陶瓷产品作为一种传统的建筑装饰材料,早已广泛的应用于我国民用建筑室内外装饰。早期的陶瓷产品,由于施工技术和产品自身质量的限制,在建筑上多采用湿贴工艺进行室内外装饰施工。但室外湿贴施工方式的陶瓷产品在风雨侵蚀、温度、地震等作用的影响下,易产生泛碱、松动和脱落现象,表面污严重,严重情况下可造成大量的财物损失和人员伤亡,因而其安装高度和使用的范围极其有限,通常用于建筑的裙楼较多,大部分为室内装饰用。
随着干挂施工技术的出现、陶瓷生产工艺的提高,以瓷板为代表的陶瓷产品在我国建筑幕墙上逐步得以应用。瓷板产品具有较高的抗弯(抗折)性能,平均弯曲强度(R)≥30.0(N/mm2),小值(Rmin)≥27.0(N/mm2),远大于一般花岗岩板材约8(N/mm2)的弯曲强度;吸水率低,平均值ε≤0.5%,远小于花岗岩板材的吸水率;同时瓷板表面的色彩、图案和质感可人为控制,特别是在仿石效果方面,更为显著。由于具有上述特点,瓷板产品替代石材在建筑幕墙上的应用引起了广泛的关注,为此住建部专门编制了《建筑幕墙用瓷板》JG/T217-2007来规范幕墙用瓷板产品的生产和质量控制,在2016年12月1号实施的《人造板材幕墙工程技术规范》JGJ 336-2016也将瓷板幕墙的设计纳入了其中,以加强和规范瓷板材料在建筑幕墙中的应用,并严格规定瓷板幕墙用瓷板板厚实际厚度不得小于12mm。
由于受瓷板加工工艺和配方的限制,现有瓷板产品的厚度难以做到很厚,大多在12mm~15mm之间,板面尺寸幅度较小,瓷板产品玻化程度较高,脆性较大。由于板厚较薄,在板材的挂装位置,加工后的挂装板厚有的不到4mm,在使用过程中容易产生断裂,造成板块脱落下坠的危险,从而限制了瓷板在建筑幕墙的广泛应用。
与现有建筑幕墙用瓷板相比,轻质高强陶瓷板具有较多的优点,具有更多的应用范围和安全性。表12为轻质高强陶瓷板与相关幕墙用板的主要性能指标的比较。从表12中可以分析并得到以下结论:
1.轻质高强陶瓷板的弯曲强度介于石材和瓷板之间,从力学性能的角度分析,完全可取代石材,特别是砂岩和洞石之类的石材,同时材料力学性能离散性小,更适合安全应用;

2.比较瓷板,弯曲强度基本相同,但其脆性较低,同时由于采用的板厚较厚,耐撞击性和抗震性能能,使用更趋于安全。图30为采用轻质高强陶瓷板、楼高为100米的四川眉山心脑血管病医院,该项目陶瓷板幕墙经过建筑工程质量监督检验中心抗震试验台的检测,当振动台台面输入人工波加速度半峰值达到0.62g时,幕墙系统未出现任何损坏。
2)工程应用
2.1)建筑幕墙系统
轻质高强陶瓷板在建筑幕墙中的应用可按照《金属与石材幕墙工程技术规范》JGJ 133进行工程设计和计算。由于轻质高强陶瓷板具有多种表面装饰效果,如仿石材、仿陶板等,故采用轻质高强陶瓷板设计的建筑幕墙完全可以达到瓷板幕墙、石材幕墙和陶板幕墙的效果和性能。

图30

图31
2.2)点挂外墙板装饰系统
轻质高强陶瓷板由于具有质轻、高强和厚板的特点,很适用于面板通过挂件直接与建筑 外墙结构点式连接的外墙装饰系统(《点挂外墙板装饰工程技术规程》JGJ 321-2014)。点挂外墙板装饰系统是一种有别于建筑幕墙系统的外墙装饰形式(图31,1基体,2找平层,3背栓,4高度调节螺钉,5连接件,6锚栓,7面板,8挂件,9连接螺栓),它省却了石材幕墙的金属支承连接构件,在确保工程安全和质量的条件下,可较大幅度的降低工程造价。由于点挂外墙板装饰系统将外墙板直接固定于外墙上,所以点挂外墙板装饰系统面板位置可调性较差,墙面平整度调整较难。与幕墙系统的面板比较,点挂外墙板装饰系统面板可能存在较大的由于安装调整不到位所产生的应力。因此点挂外墙板装饰系统对其面板的强度、厚度和脆性有更高的要求,这正是轻质高强陶瓷板适合于点挂外墙板装饰系统的主要原因。同时,在采用点挂外墙板装饰系统时,应严格控制用于面板安装的外墙面基体的结构形式,通常应为钢筋混凝土剪力墙、钢筋混凝土梁柱,或经加强处理的实心砖砌体构造。